Gravensgade 114 1 2, 9700 Brønderslev
Fakta om boligen
Netto husleje
6.570,00 kr.
Aconto vand/varme
842,00 kr.
Samlet husleje
7.412,00 kr.
Indskud/depositum
18.532,00 kr.
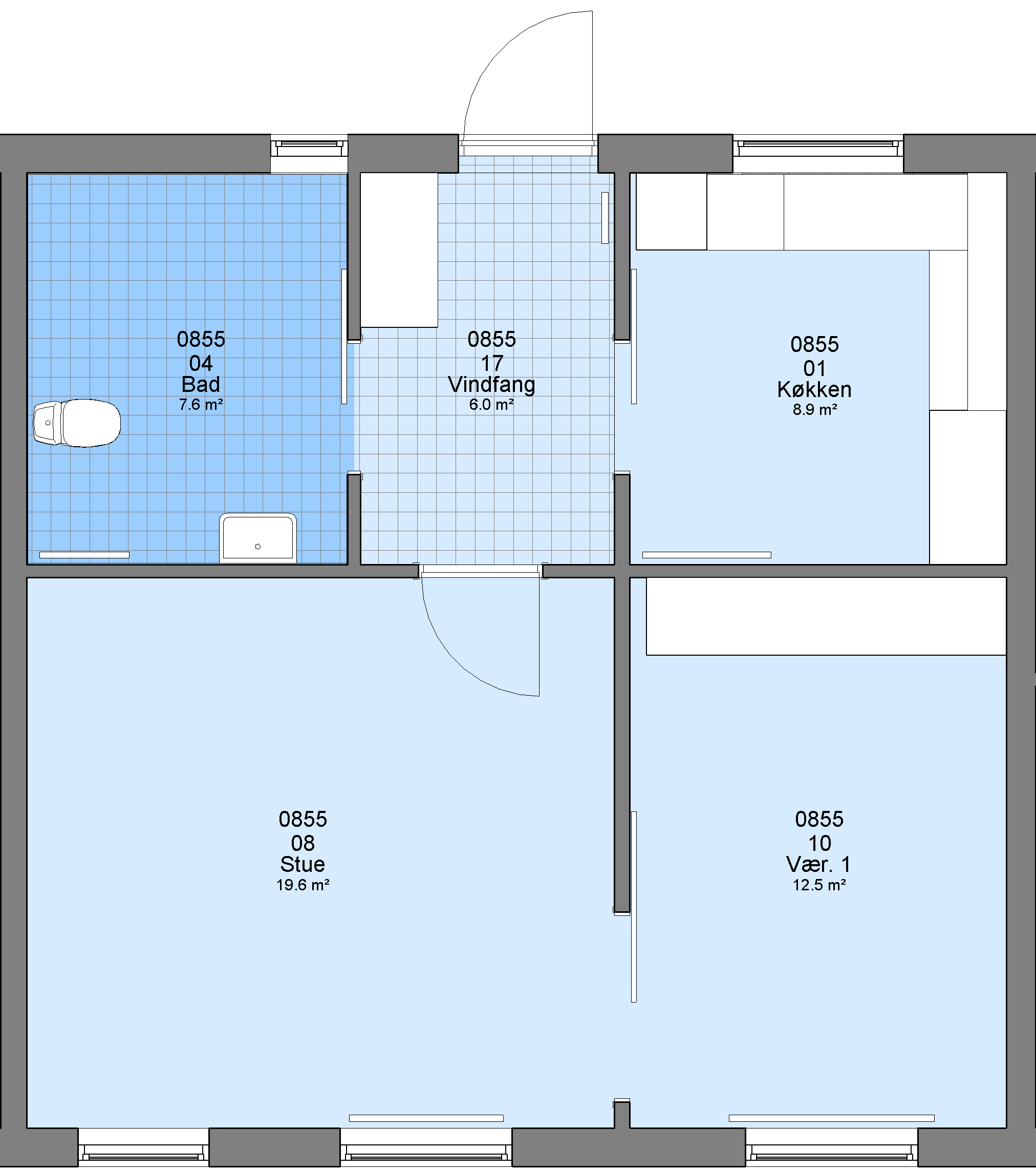
Værelser
2
Areal
82 m2
Husdyr:
Søg boligen her
Udfyld formularen, og tryk på send knappen. Du vil herefter blive kontaktet af en medarbejder. Eller kontakt os på tlf: 98821234
